Wonen met een Plus in Hillegom
De woon(zorg)opgave voor ouderen en mensen met een ondersteunings- en zorgvraag vraagt om nieuwe innovatieve en mensgerichte woonconcepten. De huidige samenleving wordt intensief aangesproken op eigen kracht, participatie en omzien naar elkaar. Kwetsbare mensen willen niet dat hun leven wordt overgenomen als ze het zelfstandig niet helemaal meer redden, maar willen zo veel mogelijk de eigen regie houden.
Zowel over de woonomgeving als over het omgaan met gezondheidsvraagstukken. Wonen in een veilige omgeving, blijven participeren, een gezonde leefstijl, reuring, van betekenis kunnen zijn en een zinvolle dag invulling dragen op een positieve manier bij aan leefplezier. Ook op het gebied van zorg zien we dat er steeds meer in overleg met de burger, de mantelzorger en de professionele zorgverleners samen wordt uitgevoerd. Deze ontwikkelingen vragen om nieuwe woon-leef concepten.

HevoFame ontwikkelt samen met woningcorporatie Stek Wonen en zorgorganisatie Marente op basis van de hierboven beschreven visie en uitgangspunten het concept ‘Wonen met een Plus’ op de locatie van de voormalige Savioschool in Hillegom. De locatie maakt het mogelijk dat een mix van bewoners met en zonder zorgvraag op een fijne en eigentijdse manier kunnen wonen. Onderdeel van het concept is de mogelijkheid dat mensen een ‘volledig pakket thuis’ (VPT) vanuit de wet langdurige zorg kunnen afnemen.
Concept
De Savio locatie bestaat uit een toekomstbestendig woonleef-complex met 39 appartementen voor de leeftijdsgroep 55+. Van de 39 woningen worden er 22 beschikbaar gesteld voor mensen met een intensieve, langdurige zorgvraag die hiervoor gebruik maken van een Volledig Pakket Thuis (VPT). Dit pakket biedt mogelijkheden voor het leveren van zorg, begeleiding en welzijn, aansluitend op het persoonlijke leven en behoefte van de bewoner. Met VPT wordt geplande zorg op afspraak en acute zorg op afroep geboden door Marente.
Door de samenstelling in het woonleef-complex ontstaat een mix van bewoners met en zonder zorg die met elkaar, vitaal, op een moderne manier oud kunnen worden. Het gedachtengoed hierbij gaat uit van wederkerigheid, omzien naar elkaar en van betekenis kunnen zijn voor elkaar, wat bijdraagt aan meer leefplezier. Het complex faciliteert en stimuleert met haar gemeenschappelijke beschikbare ruimte ook ontmoeting. Hierdoor kan het gemeenschappelijk organiseren van bezigheden bijdragen aan de plus van het complex.
Ontwerp
Een nieuw bestemmingsplan voorziet in de mogelijkheid om op deze voormalige schoollocatie maximaal 40 appartementen te realiseren op de locatie. De nieuwbouw krijgt een toegang en hoofdentree aan de zijde van de Olympiaweg. Aan de “achterzijde” wordt een openbare parkachtige groenzone ontwikkeld door de gemeente die de huidige groenstructuur in oostwest richting verbindt en versterkt. Er komt hier ook een wandelpad. Het gebouw is zo ontworpen dat de entreehal op de begane grond doorloopt van de hoofdentree tot aan het park zodat het gebouw met beide zijden verbonden is. Vanuit de centrale hal is een centrale ontmoetingsruimte voor bewoners direct bereikbaar met een groot terras aan het park en de Sportlaan. Het park is daarmee verbonden met het gebouw en voelt daarmee als een tuin. Op de begane grond is tevens een teamkamer met voorzieningen voor de zorgorganisatie. Het gebouw staat in een “groene voet”: aan de noordzijde in het park en aan de zuidzijde door een groen haag die de begane grond terrassen afschermt.
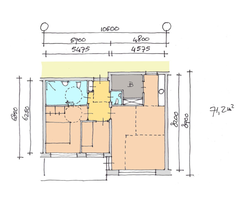
De driekamerappartementen zijn levensloopbestendig, zorgtoegankelijk en geschikt voor intensieve zorg. Op de begane grond is een grote gezamenlijk fiets- en scootmobielruimte volgens de Amsterdamse bouwbrief. Alle appartementen worden ontsloten via een corridor en zijn daarmee over de breedte ontworpen waarbij alle verblijfsruimtes aan de gevels liggen.


driekamerAPPARTEMENT
Het hoofdtrappenhuis en de twee liften liggen centraal in het gebouw met op iedere verdieping een directe aansluiting met een ontmoetingsruimte aan de parkgevel. Hiermee wordt de corridor royaal voorzien van daglicht.
Het gebouw is alzijdig ontworpen, hetgeen zich uit in woningen aan alle zijden van het wooncomplex en in de overhoekse plaatsing van de balkons van de hoekwoningen. De gevels worden opgetrokken in een lichte zandgele metselsteen waarbij de balkons als integraal onderdeel van de gevels zijn mee ontworpen. De borstweringen in de woningen liggen op circa 30 cm boven vloerniveau zodat bewoners vanuit zittende positie altijd goed zicht hebben naar buiten en naar de omgeving. Dit uit zich in het ontwerp in de subtiele horizontale belijning in het metselwerk door de penanten tussen de gevelkozijnen uit te voeren met spekbanden in een lichtbruine steen.


